Part III: Daily temperature cycles, east wing
This five-day period was a testing time for the unheated solar-passive house. Days were at their shortest, some nights were frosty, and overcast persisted for two days. It fell within a cold, wet, and cloudy winter.
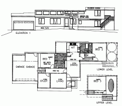
This post is about the single-storied east wing of the house. It is the main part of the house, with most of the clearstory windows.
Back to Part I: Average temperature values.
Back to Part II: Daily temperature cycles, west wing
Forward to Part IV: Solar gain in the clear-story
Observations
In this wing, seen on the left in the photo, five thermometer stations define a profile in height. They are:
Subsoil in the heat bank beneath the house;
On the floor slab;
On the room wall;
In the clearstory space;
OUTDOORS, in a Gill Screen, 1.5 metres above the ground and eight metres from the house.
During the five days I made 84 observations at each station at intervals as shown. They define the daily temperature cycles. I observed the amount of cloud in Octas (eighths of the sky) at the same intervals.
This table lists for each thermometer station the five-day values of the average, maximum, and minimum temperatures, and the temperature range.









